
一、比赛场地:比赛场地包括比赛场区和无障碍区,其形状为对称的长方形。
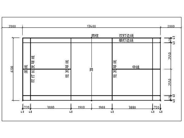
二、面积:比赛场区为18米×9米的长方形。其四周至少有3米宽的无障碍区。比赛场区上空有无障碍空间从地面量起至少高7米,其间不得有任何障碍物。国际排联世界性比赛场地边线外的无障碍区至少宽5米,端线外至少宽8米,比赛场地上空的无障碍空间至少12.5米高。成年世界锦标赛和奥运会比赛,基无障碍区边线外至少宽6米,端线外至少宽9米。
三、比赛场地的地面:
1、场地的地面须平坦、水平,并且划一。场地的地面不得有任何能伤害队员的隐患。不得在粗糙、湿或滑的场地上进行比赛。国际排联世界性比赛场地的地面只能是木质或合成物质的。任何地面都须事先经国际排联验准。
2、室内比赛场地的地面须是浅色。国际排联世界性比赛场地界线为白色。比赛场区和无障碍区分别为另外不同的颜色。
四、场区上的画线:
1、所有的界线宽5厘米。其颜色应是与地面和其它项目画线不同的浅色。
2、界线:两条边线和两条端线划定了比赛场区。边线和端线都包括在比赛场区的面积之内。
3、中线在网下连接两条边线的中点。中线的中心线将比赛场区分为长9米、宽9米的两个相等的场区。
五、区和区域:
1、前场区:每个场区各画一条距离中线中心线3米的进攻线(其宽度包括在内)。中线与进攻线之间为前场区。国际排联世界性比赛时,在每条进攻线边线两侧画五个长15厘米、宽5厘米,并间隔20厘米的虚线,虚线总长1.75米。前场区被认为是向边线外无限延长的。
2、发球区:发球区宽9米,位置在端线后(不包括端线)。两条端线后各画一条长15厘米、垂直并距离端线20厘米的短线,两条短线之间的区域为发球区,短线宽度包括在发球区之内。发球区的深度延至无障碍区的终端。
3、换人区:两条进攻线的延长线之间、记录台一侧边线外的范围为换人区。
4、准备活动区:国际排联世界性比赛的无障碍区外的替补席远端,画有3×3米的准备活动区。
六、温度: 低温度不得低于10摄氏度(50华氏度)。国际排联世界性比赛的室内温度,高不得高于25摄氏度(77华氏度),低不得低于16摄氏度(61华氏度)。
七、照明:国际排联世界性比赛室内照明度在距地面1米高度进行测量,应为1000~1500勒克斯。
| 上一条:国际篮联篮球场地标准尺寸及说明 | 下一条:网球场规格 |






